Дом с соломенной крышей
Дом с соломенной крышей
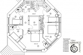
Дом с конусной крышей из искусственной соломы имеет 170 м.кв. Небольшая площадь 1-го этажа за счет пространства под крышей выглядит достаточно объемно. Окна до пола еще больше расширяют гостиную, столовую, кухню. В цокольном этаже находятся пять спален, санузел и фильтровая, под лестницей расположена прачечная. Каждый квадратный сантиметр работает на хозяев этого дома. Идея положить форму многогранника в основу дома позволила рационально разместить большое количество комнат на относительно небольшой площади. Публикация в журнале "Красивые дома"
Фотографии интерьера
Бережное отношение к пространству выражено в рациональном современном дизайне интерьера дома.
В чистом поле, на участке площадью 55 соток сначала была создана общая концепция развития застройки и формирования сада. Гостевой дом, основной дом, строения барбекю-оранжереи и бани-квартиры садовника были сразу посажены в генплане на свои места. Учитывались виды, инсоляция, оптимальная прокладка коммуникаций и этапы строительства сооружений. На данный момент на участке стоит гостевой дом; посажены рождественская ель, яблоневый и вишневый сад; создан пруд с ручьем, текущим по альпийской горке; стоит беседка с розарием; заложен можжевелово-рододендровновый сад, миксбордер и настоящий березово-сосновый лес. Из необычного: поставлен детский дом на ножках и площадка для костра. Впереди увлекательное занятие-создание родового гнезда большой и дружной семьи.
| |
|||
| |
