проект дома в Калужской области
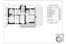
Загородный дом в Калужской области
, площадью 360 кв.м., предназначен для проживания семьи из 6 человек.
| |
|
|
На первом этаже с гаражными воротами располагается хозблок для садовой техники и квадроциклов. Бойлерная с отдельным входом связанна с основными помещениями дома через постирочную. В трубе камина гостиной располагается канал от барбекю. Терраса с выходом из кухни и гостиной обрамляет дом с востока и юга. Мансарда площадью 48 м.кв. отдана под домашний кинотеатр.
