Проект бани с хамамом
Проект Бани
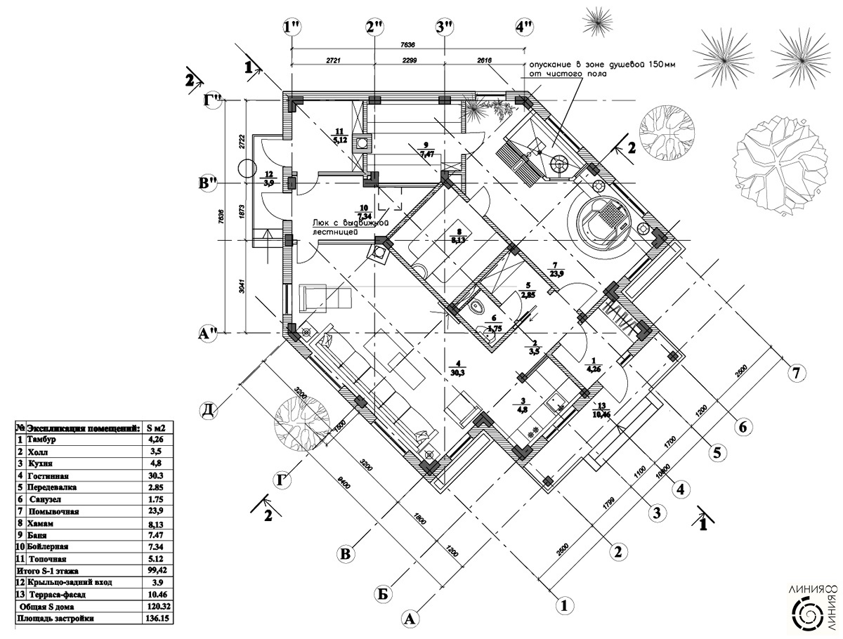
Баня площадью 80 кв.м., включает в себя русскую баню с топочной, хамам, зону отдыха с мини кухней, санузел и помывочную. Для топочной предусмотрен отдельный вход для загрузки дров. Отдельный вход есть и для бойлерной. По генплану здание располагается в углу участка, и вход ориентирован на основной дом. Материал стен - кирпич или керамзитобетонные блоки.
ВЫ МОЖЕТЕ КУПИТЬ ГОТОВЫЙ АРХИТЕКТУРНЫЙ ПРОЕКТ ЭТОЙ БАНИ! СТОИМОСТЬ ПРОЕКТА - 30 000 РУБ.
Фотографии интерьера бани с хамамом
